$345,000
ACTIVE
Specification
| Type | Commercial |
| MLS # | 174179 |
| Publication date | Feb 05, 2026 |
| Lot size | 1.43 acres |
| Subdivision | OTHER |
Property ID: 14329
Updated: Jan 01, 2026
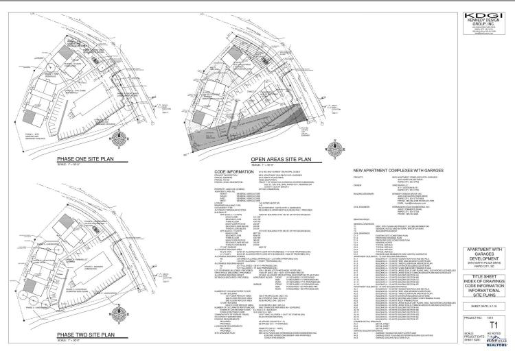
LISTED BY BOBBY SUNDBY 605-209-2777. ZONED OFFICE COMMERCIAL, WHICH ACCOMMODATES MULTI FAMILY/APARTMENTS. POSSIBLE REZONE TO LIGHT IND. WHICH IS IN THE AREA AS WELL. HAVE YOU DREAMED OF OWNING AND/OR BUILDING YOUR OWN WEST-SIDE RAPID CITY APARTMENT PROJECT? THE OWNER MAY BE WILLING TO TRADE OTHER RESIDENTIAL OR COMMERCIAL PROPERTY. DIRECTLY ACROSS FROM FOUNTAIN SPRINGS CHURCH AND NEXT TO STRIDER. THIS LISTING INCLUDES LAND ALONG WITH APPROVED-BY-CITY/READY FOR BUILDING PERMIT LETTER ACCEPTING 28 UNIT APARTMENT PROJECT WITH COMPLETED ENGINEERING AND DESIGN. ONE SIXTEEN UNIT BUILDING, 12 UNIT BUILDING & 17 GARAGES. CITY WATER/SEWER. GREAT VIEWS AND LOCATION. BUILD BOTH BUILDINGS AT ONCE OR CONSIDER ONE AT A TIME. ALL TWO BEDROOM TWO BATH UNITS. SEE ATTACHED DRONE VIDEO. EXTENSIVE/COMPREHENSIVE PLANS AVAILABLE BY CONTACTING 605-209-2777. OR YOU MAY CHOOSE TO PURCHASE THE LAND AS OFFICE COMMERCIAL FOR YOUR BUSINESS. LISTED BY BOBBY SUNDBY 605-209-2777. BROKER OWNED. NOTE: THERE IS AN EXISTING OPTION TO PURCHASE ACCEPTED ON THIS PROPERTY AS OF JUN 18 2025. THIS PROPERTY IS ONLY ACTIVE TO THE DEGREE THE OPTION HOLDER WOULD RELINQUISH RIGHTS, WHICH IS BELIEVED THEY WOULD, IN THE EVENT ANOTHER ACCEPTABLE OFFER COMES FORWARD.